logo MMCV logo MMCV

SALVADOR MARÍA DEL CARRIL 3546

En el corazón de Villa Devoto, sobre un boulevard y a metros de la Plaza Arenales, es un proyecto residencial que busca integrar la arquitectura contemporánea con el carácter sereno y arbolado del barrio.

Las unidades se expanden hacia el frente mediante amplios balcones con vegetación, promoviendo una vida más conectada con el entorno y aportando verde al espacio urbano.

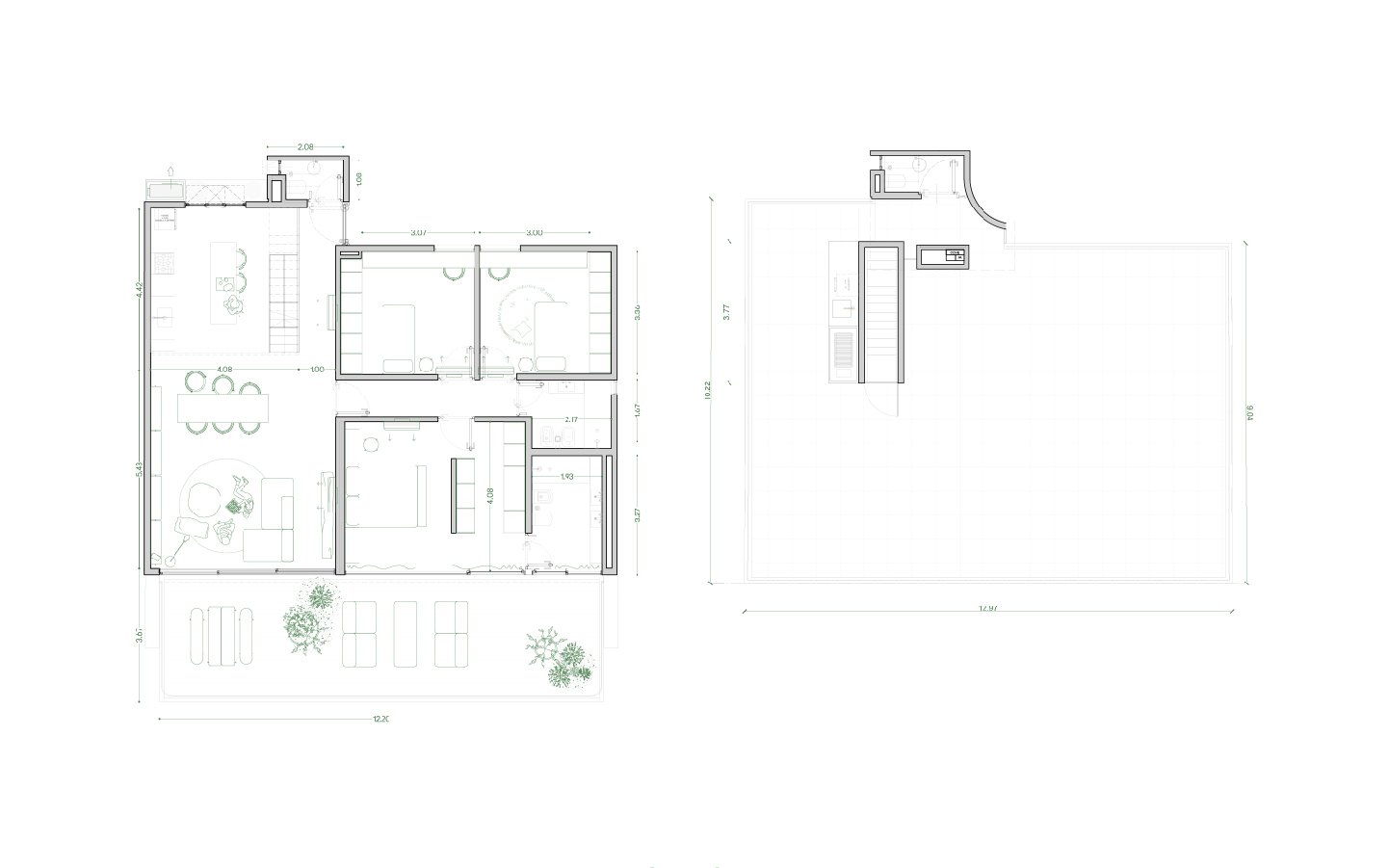
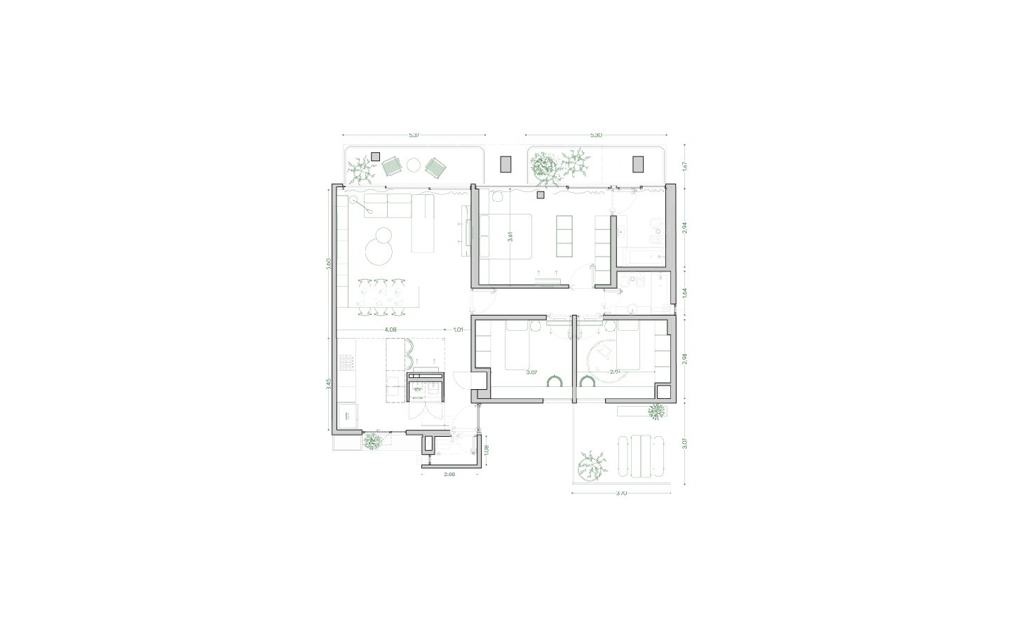
Unidades de 4 ambientes.

Adquirir uno de nuestros productos es asegurar un diseño y una calidad singular. Te invitamos a formar parte de nuestros proyectos. La ubicación, la arquitectura, los amenities y los programas de usos mixtos garantizan el éxito de nuestros edificios. CONTACTANOS